Sở hữu một ngôi nhà đẹp đó là mong muốn của rất nhiều người. Trước khi xây dựng nhà phố quý khách hàng cần phải lưu ý vấn đề lập tài chính, thiết kế kiến trúc, lựa chọn phong cách phù hợp, chọn vật liệu xây dựng, hợp tác cùng đơn vị thi công uy tín. Trong bài viết hôm nay, Maxhome sẽ gửi tới quý khách hàng một số lưu ý cần biết khi xây dựng nhà phố.
- Quy trình xây dựng nhà phố, nhà lô phố trọn gói
Bước 1: Gặp gỡ khách hàng, tư vấn cho khách hàng phong cách phù hợp và báo giá sơ bộ để khách hàng lựa chọn và cân đối tài chính.
Bước 2: Khảo sát công trình, lên ý tưởng và tính toán sơ lược, lên bản thiết kế sơ bộ.
Bước 3: Kí hợp đồng thiết kế sau khi chốt bản thiết kế sơ bộ. Báo giá cụ thể đến khách hàng.
Bước 4: Điều chỉnh bản thiết kế theo mong muốn của gia chủ. Phối cảnh 3D và chốt bản thiết kế cuối cùng để chuyển sang bước thi công. Bản vẽ 3D sẽ giúp chủ nhà hình dung được rõ căn nhà của mình thực tế.

Căn nhà phố của anh Đăng, toạ lạc ở Đồng Nai
Bước 5: Thi công phần thô: thi công móng, xây tường thô, đổ dầm sàn, đổ mái…
Bước 6: Thi công nội thất phần thô: Thi công trần thạch cao, thi công điện nước, sơn tường, thi công sàn.
Bước 7: Lắp đặt sản phẩm nội thất, trang trí theo phong cách đã thống nhất.
Bước 8: Hoàn thiện, vệ sinh công nghiệp.
Bước 9: Nghiệm thu công trình và bảo hành cho gia chủ.
- Những lưu ý khi xây dựng nhà phố, nhà lô phố
2.1 Tìm hiểu kỹ về thủ tục pháp lý khi xây dựng nhà phố, nhà lô phố
Sau khi đã trao đổi với đơn vị thiết kế và chốt được phương án thiết kế gia chủ cần hoàn tất thủ tục về mặt pháp lý, xin cơ quan nhà nước có thẩm quyền cấp phép xây dựng. Bước này nên chuẩn bị sớm ngay sau khi có bản thiết kế để không ảnh hưởng đến thời gian dự định thi công.
Hồ sơ xin giấy phép xây dựng nhà ở cần những loại giấy tờ như sau:
– Đơn đề nghị cấp phép xây dựng.
– Bản sao giấy tờ chứng minh quyền sở hữu đất đai theo quy định của pháp luật.
– Bản sao hai bộ bản vẽ thiết kế kỹ thuật gồm:
Bản vẽ mặt bằng công trình trên lô đất (tỷ lệ 1/50 – 1/500) kèm theo sơ đồ công trình.
Bản vẽ mặt bằng các tầng, các mặt đứng và cắt chính của công trình (tỉ lệ 1/50 – 1/200).
Bản vẽ mặt bằng móng (tỉ lệ 1/50 – 1/200) và mặt cắt móng (tỉ lệ1/50) kèm theo sơ đồ đấu nối hệ thống thoát nước mưa, xử lý nước thải, cấp nước, cấp điện.

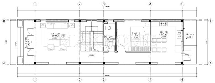
Mặt bằng minh hoạ cho một nhà lô phố
Lưu ý: Đối với công trình xây dựng có công trình liền kề, bạn cần phải có bản cam kết bảo đảm an toàn đối với công trình liền kề.
2.2 Lên kế hoạch tài chính rõ ràng để sở hữu ngôi nhà phố ưng ý
Để xây một ngôi nhà phố chắc chắn chi phí xây dựng là một con số không hề nhỏ. Do đó gia chủ cần chuẩn bị tài chính thật vững, lên kế hoạch và dự trù kinh phí xây dựng ngay từ đầu. Việc lên kế hoạch tài chính rõ ràng giúp đảm bảo tiến độ thi công đúng theo thời gian đặt ra, có thể nhanh chóng thanh toán các giai đoạn thi công cho bên nhà thầu. Bên cạnh chi phí phải chi trả cho toàn bộ quá trình xây dựng khách hàng nên để ra một khoản tiền dự phòng để tránh trường hợp có những chi phí phát sinh trong quá trình thi công.

Đứng vị trí số 2 mẫu nhà hiện đại đẹp nhất của Maxhome
Hãy luôn lắng nghe theo tư vấn của đơn vị thiết kế, bởi vì các KTS đều là những người có kinh nghiệm và chuyên môn do đó các KTS sẽ tư vấn cho khách hàng các gói xây dựng phù hợp để khách hàng vẫn sở hữu những căn nhà đẹp, thể hiện được phong cách cá nhân mà vẫn phù hợp với gia đình.
2.3 Xác định phong cách thiết kế chức năng và nhu cầu sử dụng
Trước khi xác định phong cách thiết kế thì khách hàng cần xác định mục đích sử dụng của ngôi nhà phố: nhà để ở, cho thuê hay kinh doanh,…
Tiếp theo tùy thuộc vào nhu cầu sử dụng của gia đình, khách hàng cần xác định số lượng các phòng chức năng và các không gian chung như: phòng ngủ, phòng bếp, phòng khách, phòng thờ, gara, sân thượng,…

Công trình Homestay cho bạn tham khảo
Khách hàng trao đổi thật kĩ với KTS về mong muốn phong cách hướng đến, sở thích cá nhân của từng thành viên để lựa chọn ra phong cách phù hợp nhất. Có thể kết hợp 2 phong cách khác nhau để tạo nên một ngôi nhà ưng ý. Tuy nhiên không nên kết hợp quá nhiều phong cách vì sẽ gây cảm giác bí bách trong ngôi nhà.
Một số phong cách phù hợp với thiết kế nhà phố là: Phong cách hiện đại, thiết kế nội thất tân cổ điển, phong cách tối giản, phong cách đương đại, phong cách Japandi,…
2.4 Lựa chọn đơn vị thiết kế và thi công nhà phố uy tín
– Đơn vị xây dựng uy tín thường có độ đa dạng cao: đơn vị hoạt động chuyên nghiệp có độ đa dạng cao về các dịch vụ cung cấp cho thấy quy mô phát triển của đơn vị đó.
– Đơn vị xây dựng uy tín có đội ngũ kiến trúc sư, kỹ sư giàu kinh nghiệm: KTS giỏi và giàu kinh nghiệm biết tận dụng không gian một cách tối đa, hài hòa, bài trí nội thất có thẩm mỹ và hợp phong thủy. Khéo léo biến những mong muốn ý tưởng riêng biệt của khách hàng trở thành hiện thực.
– Đơn vị xây dựng uy tín có cơ sở vật chất tốt, nhà xưởng sản xuất hiện đại: hệ thống văn phòng, nhà xưởng sản xuất trực tiếp, showroom trưng bày sản phẩm đảm bảo cung cấp dịch vụ đầy đủ, trọn gói, tận tình cho khách hàng.
– Đơn vị xây dựng uy tín có hợp đồng rõ ràng, điều khoản chi tiết: Trong hợp đồng ký kết sử dụng dịch vụ giữa hai bên điều khoản rõ ràng, đề cao quyền lợi khách hàng và bảo hành tốt.
– Đơn vị thiết kế thi công nội thất uy tín có nhiều công trình thiết kế, thi công thực tế, có tên tuổi và thâm niên hoạt động lâu dài.
2.5 Tìm hiểu rõ quy trình xây dựng nhà phố
Tìm hiểu về quy trình thi công nhà phố cũng là một trong những việc mà khách hàng cần lưu ý, giúp khách hàng tránh được những rắc rối, phát sinh trong quá trình xây dựng, không bị phát sinh chi phí.
Toàn bộ quy trình xây dựng nhà lô phố đã được Maxhome trình bày ở trên. Nếu còn bất kì thắc mắc nào, bạn hãy liên hệ với công ty theo các số Hotline để được tư vấn miễn phí nhé!











