Mẫu nhà vườn mái Nhật mang phong cách hiện đại | MH00221
| Chủ đầu tư: Anh Hoàng Anh Thăng | Số tầng: 2 |
| Địa chỉ: Thành Tâm, Chơn Thành, Bình Phước | Diện tích xây dựng: 7,5 x 20,3m |
| Loại hình: Nhà mái Nhật hiện đại | Tổng diện tích: 152m2 |
| Công năng:
Phòng khách, phòng bếp, 3 phòng ngủ, 1 wc |
|
Trong những năm gần đây, mẫu nhà vườn mái Nhật hiện đại được tìm kiếm ngày càng phổ biến hơn. Cùng Maxhome tham khảo mẫu nhà dưới đây để có nhiều ý tưởng thiết kế nhà vườn mái Nhật một tầng nhé!
Mái ngói kiểu Nhật là sự kết hợp hài hòa giữa phong cách mái Thái và mái ngói dốc châu Âu cổ điển. Sự khéo léo trong việc dung hòa giữa hai nền kiến trúc phương Đông và phương Tây mang đến một cảm giác mới lạ, độc đáo, tạo nên điểm nhấn ấn tượng cho tổng thể ngôi nhà.

Toàn bộ cửa chính và cửa đi của ngôi nhà được làm bằng nhôm kính hệ xingfa chống chịu lực, chịu nhiệt, cách âm tốt. Màu sắc chủ yếu như màu trắng, màu xanh, điểm nhấn thêm 1 bức tường được ốp đá phía trước tạo thêm nét thẩm mỹ cho không gian ngoại thất.

Nâng đỡ hệ mái chính là hệ thống 2 cột trụ lớn, vuông vắn được trang trí bằng các đường kẻ chỉ và đèn chiếu sáng tạo cho ngôi nhà thêm bề thế, vững chãi. Bậc ngũ cấp đi lên tạo cho ngôi nhà thêm phần cao ráo.

Toàn bộ phần sảnh và bậc thềm đều được lát bằng đá grenit tăng thêm phần sang trọng cho khu vực này. Bảo vệ phần chân tường khỏi rêu mốc, nứt nẻ đó chính là phần gạch thẻ đc ốp xung quanh.
Phía trên mái có tạo 1 ống khói giả tăng thêm vẻ đẹp cho công trình. Ở phần mái còn có tạo 1 ô để téc nước và thái dương năng để phục vụ sinh hoạt cho cả gia đình.

Nhìn tổng thể, ngôi nhà được thiết kế theo phong cách hiện đại với những đường nét đơn giản, hình khối vuông vắn, ko rườm rà với những họa tiết cầu kỳ. Phía trên mái có tạo 1 ống khói giả tăng thêm vẻ đẹp cho công trình.

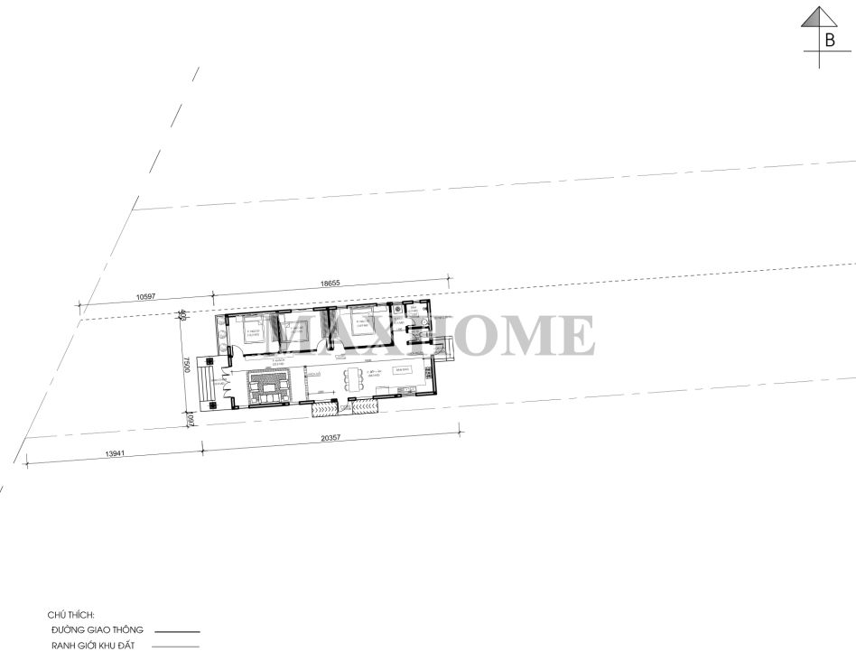
Với chiều ngang mặt trước là 7,5m và chiều sâu là 20,3m tính cả sảnh. Như vậy ngôi nhà có tổng diện tích sử dụng là 152m2. Từ sảnh chính rộng 10,8m2, bước vào không gian đầu tiên là phòng khách 23,2m2.

Một bộ sofa lớn được đặt ở không gian này, kệ ti vi được đặt phía đối diện để đáp ứng nhu cầu giải trí cho mọi người trong gia đình. Phòng bếp kết hợp phòng ăn có diện tích lên đến 38m2, rất rộng rãi để bài trí không gian.Từ không gian bếp, ta có 1 sảnh phụ đặt phía bên hông nhà và 1 cửa hậu đi ra phía sau căn nhà.



Căn nhà có tổng 3 phòng ngủ. Phòng ngủ 1 và phòng ngủ 2 có đồng diện tích là 12,2m2. Phòng ngủ 3 có diện tích lớn hơn 14,9m2. Ba phòng ngủ này đều có sắp xếp các nội thất cơ bản và phòng ngủ nào cũng có thiết kế cửa sổ để lấy sáng và tạo không gian thông thoáng trong phòng.











