Xây nhà cấp 4 theo xu hướng hiện nay đang rất được phổ biến. Cùng với chi phí xây dựng thấp và phong cách thiết kế nhà ở từ đơn giản cho đến hiện đại đã tạo nên một không gian sống tiện ích. Hãy cùng Maxhome tham khảo về những kiểu mẫu nhà cấp 4 phổ biến nhất năm 2022, được nhiều chủ nhà quan tâm hiện nay nhé!
- Các yếu tố tác động tới giá xây dựng nhà cấp 4

Công trình nhà mái Thái cấp 4 anh Tiến tại Bắc Giang
Để xây dựng được phần thô một căn nhà cấp 4, cần rất nhiều yếu tố. Chính vì vậy, giá thành xây dựng cũng sẽ bị ảnh hưởng từ nhiều yếu tố cơ bản như:
Vị trí đất xây dựng là yếu tố ảnh hưởng nhiều nhất tới giá cả bao gồm: Đất yếu hay mềm, mặt tiền hay hẻm, xây nhà cấp 4 có một hay hai mặt tiền,…
Loại hình kiến trúc căn nhà: Hiện đai hay cổ điển, xây tạm thời hay kiên cố,… Bởi một căn nhà được xây theo phong cách cổ điển sẽ tốn nhiều công sức và nguyên liệu để tạo đường nét hoa văn hơn so với một căn nhà hiện đại. Một căn nhà xây kiên cố sẽ cần đầu tư vào phần móng, tường, nguyên vật liệu nhiều để tạo ra phần khung chắc chắn hơn là một căn nhà tạm.
Thời điểm xây dựng: mùa khô hay mưa, nhân công tăng hay giảm,… Vào mùa mưa, việc xây dựng bị gián đoạn và quá trình xây dựng cũng khó khăn hơn. Vì vậy, giá thành xây dựng vào mùa mưa sẽ có sự chênh lệnh so với mùa khô.
Giá vật liệu trên thị trường và vùng miền nơi bạn sống cũng sẽ ảnh hưởng tới giá xây dựng.
Tùy thuộc vào điều kiện tài chính của bạn tại thời điểm xây dựng, cũng như giá thành chung trên thị trường để có những báo giá về vật tư, nhân công khác nhau. Nên tìm hiểu về bảng giá xây dựng nhà phần thô trước khi tiến hành xây dựng.
- Phương pháp dự toán chi phí xây nhà

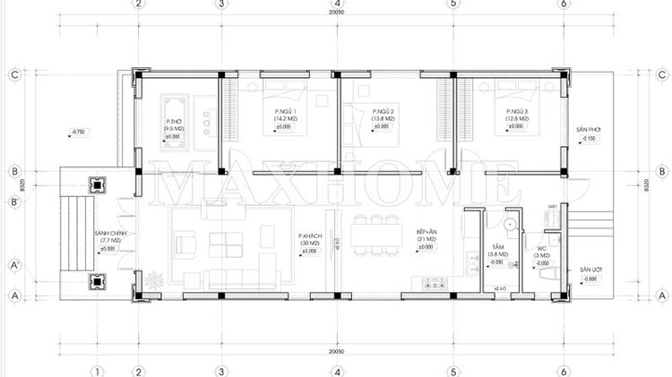
Mặt bằng bố trí nội thất công trình nhà mái Thái của anh Long – Hải Dương
Có 3 phương pháp dự toán chi phí xây dựng thường được sử dụng đó là:
Tham khảo công trình tương đương rồi quy ra giá trị công trình mình sắp xây dựng. Tuy nhiên phương pháp này có hệ số sai lớn vì mỗi công trình có sự khác biệt riêng nên dự toán chi phí ít chính xác.
Bóc tách dự toán trên khối lượng: phương pháp này có sự chính xác cao, nhưng gia chủ sẽ mất phí thuê người dự toán, thường là 0,02% trên tổng giá trị dự toán.
Khoán gọn theo m2 xây dựng công trình: phương pháp này hay được sử dụng vì đơn giản mà độ chính xác tương đối cao. Chỉ cần tính tổng m2 cần xây dựng nhân đơn giá của đơn vị thiết kế xây dựng.
- Cách tính chi phí xây dựng nhà cấp 4
3.1. Cách tính công thức dựa trên hệ số
a. Phần móng
Thi công móng đơn: đã gồm trong đơn giá.
Thi công móng cọc: 30% diện tích trệt.
Thi công móng băng một phương: 50% diện tích trệt.
Thi công móng bằng 2 phương: 70% diện tích trệt.
Thi công móng bè: 100% diện tích trệt.
b. Phần sàn
Diện tích xây dựng có mái che: 100% tầng 1, 2, 3,…
Diện tích xây dựng không có mái che: 50% sân phơi, sân thượng.
c. Phần mái
Mái tôn: 30%.
Mái ngói vì kèo sắt: 70%.
Mái ngói đổ bê tông cốt thép: 100%.
d. Phần sân
Sân trước và sân sau: 50% .
e. Phần cầu thang
Khu vực cầu thang: 100%.
f. Công thức tính chi phí thi công cọc và móng
(đơn giá x số lượng cọc x chiều dài cọc) + phí thi công cọc + (Hệ số x diện tích sàn x đơn giá).
Tổng chi phí xây dựng = chi phí móng cọc + chi phí xây dựng phần thô và hoàn thiện.
g. Công thức chi phí xây thô và hoàn thiện vật liệu
Tổng diện tích (theo hệ số) x đơn giá.
3.2 Vật tư hoàn thiện
Đây là khoản phí tốn kém hơn chủ đầu tư nghĩ. Vì trên thị trường xây dựng hiện nay, vật tư hoàn thiện rất đa dạng về mẫu mã và chất lượng. Cùng là một sản phẩm nhưng có nhiều giá thành khác nhau tùy theo khả năng đầu tư của chủ nhà.
- Cách xây dựng nhà cấp 4 tiết kiệm chi phí nhất

Hình ảnh 3D công trình nhà mái Thái Tân cổ điển
Để xây dựng nhà cấp 4 đẹp, đảm bảo công năng sử dụng và tiết kiệm tối đa chi phí, bạn cần lưu ý một số vấn đề sau:
Xác định mô hình xây dựng nhà cấp 4 phù hợp với gia đình, lập bảng dự toán chi tiết, cụ thể. Để làm được điều này, bạn cần tham khảo ý kiến từ các chuyên gia hoặc những người có kinh nghiệm.
Tham khảo giá vật tư trên thị trường để tính toán chính xác bảng kinh phí vật tư.
Tổng hợp: tính chi tiết các hạng mục như vật liệu, nhân công và các chi phí phát sinh trong quá trình xây dựng.
Khi xây nhà cấp 4 bạn cần chuẩn bị kỹ nguồn tài chính và dự trù 1 khoản phòng cho các chi phí phát sinh. Tùy theo điều kiện kinh tế mà bạn có thể lựa chọn thiết bị nội thất sao cho hợp lý.
Với những chia sẻ trên, Maxhome đã cung cấp cho bạn những thông tin xây nhà cấp 4 tiết kiệm chi phí. Với sự tận tâm của mình, Maxhome luôn cố gắng mang đến những giải pháp tốt nhất cho ngôi nhà của khách hàng.











