Một người kiến trúc sư giỏi là một người có khả năng phân tích, bố trí và sắp đặt công năng cho ngôi nhà đẹp một cách phù hợp nhất. Thật vậy việc bố trí ra được một mặt bằng công năng sao cho phù hợp với nhu cầu của chủ đầu tư, cũng như những yêu cầu về thẩm mỹ kiến trúc hay phong thủy.
Nó đòi hỏi một sự đầu tư thời gian, công sức cũng như trí tuệ vào đó, bởi thế việc phân chia công năng trong một căn nhà được coi là quan trọng nhất trong công việc thiết kế kiến trúc nhà đẹp. Ngôi nhà có được thuận lợi trong việc sử dụng hay không, có được tiện nghi hay không phụ thuộc rất nhiều vào cách sắp xếp, tổ chức các phòng chức năng trong đó.

Để phân chia mặt bằng công năng không phải đơn giản, việc này phụ thuộc vào rất nhiều yếu tố. Đầu tiên phải dựa vào nhu cầu sử dụng của người sử dụng ngôi nhà (ngôi nhà cần có bao nhiêu phòng chức năng, gồm những phòng nào, diện tích ra sao rồi bao nhiêu tầng, trên mỗi tầng đấy sẽ có các không gian phòng chức năng gì…) từ những nhu cầu đó kết hợp với diện tích của khu đất (rộng thì các phòng chức năng trong nó cũng có thể được ưu tiên một chút để các không gian thêm phần thoải mái về diện tích, hẹp thì có thể thu nhỏ bớt lại để dành diện tích cho các không gian khác).
Sau khi đã nắm rõ được hai yếu tố trên chúng ta sẽ dựa vào tuổi của gia chủ, đối chiếu theo bát trạch để biết được hướng tốt hướng xấu theo phong thủy từ đó sẽ cân nhắc nên bố thí các phòng chức năng như thế nào để vừa hợp lý về mặt sử dụng lại vừa hợp với phong thủy của tuổi chủ nhà.

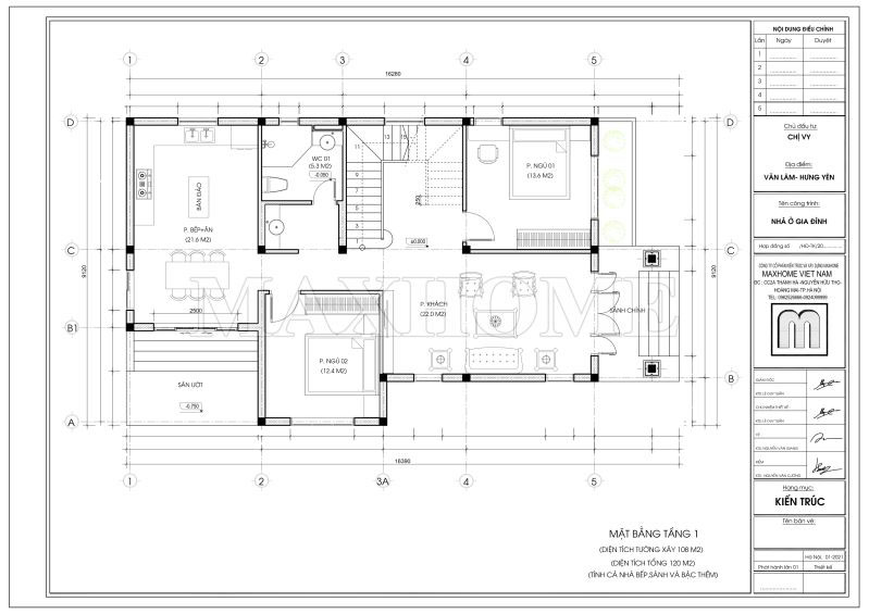
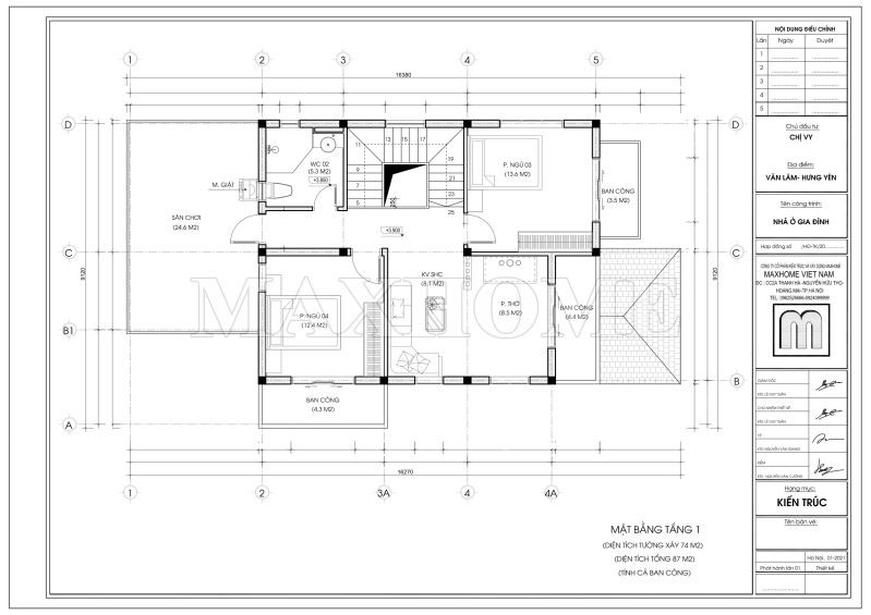
Về cơ bản, đã là công trình nhà ở thì thông thường phải có phòng khách (thường là phòng đầu tiên trước khi bước vào nhà), phòng ăn kết hợp với phòng bếp (thường đặt phía sau phòng khách), các phòng ngủ (thông thường sẽ được bố trí trên các tầng từ tầng 2 trở lên), phòng thờ (thông thường là vị trí cao nhất của ngôi nhà như phòng áp mái), ngoài ra là các không gian phụ trợ khác như nhà vệ sinh, sân phơi, ban công, sân thượng, giếng trời,… định hình trước được điều này chúng ta có thể dễ dàng tổ chức các phòng chức năng trong nhà.

Có một điểm đặc biệt quan trọng đó là vị trí đặt thang. Vị trí thang sẽ gần như quyết định tất cả đến các không gian khác bởi thang chính là giao thông theo chiều đứng của ngôi nhà, kết hợp với giao thông theo chiều ngang (là hành lang) tới các không gian phòng. Thang đóng vai trò như trung tâm của ngôi nhà và từ đó sẽ tỏa đi các nơi trong toàn thể ngôi nhà.
Cuối cùng là một lưu ý quan trọng, đó là dù có phân chia không gian chức năng đẹp đến đâu, rộng lớn tiện nghi đến đâu cũng phải chú trọng tới ánh sáng và thông gió tự nhiên cho các phòng chức năng đó một cách hài hòa nhất, dồi dào nhất.
Hy vọng rằng qua những chia sẻ trên của MaxHome giúp bạn có thể nâng cao hiểu biết về yếu tố công năng trong thiết kế thi công kiến trúc biệt thự. Từ đó có thể lên ý tưởng để thiết kế một sơ đồ công năng tối ưu cho căn nhà của bạn!











