Biệt thự 3 tầng đẹp do Maxhome thiết kế và thi công tại Sơn La | MH00827
| Chủ đầu tư: Anh Đào Minh Quý | Số tầng: 3 |
| Địa chỉ: Phù Yên - Sơn La | Diện tích xây dựng: 13 x 9,7m |
| Loại hình: Nhà mái Nhật hiện đại | Tổng diện tích: 276m2 |
Công năng:
|
|
Mẫu biệt thự 3 tầng mái Nhật trở nên vô cùng được ưa chuộng bởi thiết kế không quá cầu kỳ nhưng lại rất tinh tế. Dưới đây là một mẫu thiết kế nhà phố đẹp mê ly do Maxhome thiết kế và thi công trọn gói. Hy vọng với mẫu thiết kế này sẽ giúp bạn có thêm ý tưởng cho ngôi nhà của mình!
Mái Nhật dễ dàng kết hợp với nhiều phong cách kiến trúc và hình khối khác nhau. Ở công trình này, chúng ta dễ dàng nhận ra kiểu kiến trúc hiện đại với những đường nét khỏe khoắn. yếu tố màu sắc và ánh sáng được kết hợp vô cùng khéo léo cùng với đó là những vật liệu trang trí.

Các mẫu thiết kế mái Nhật 3 tầng đẹp chủ yếu thể hiện với gam màu trung tính tươi mới như màu trắng, giúp cho công trình sở hữu vẻ đẹp sang trọng, uy nghi, bề thế, tráng lệ nhất. Các công trình nhà biệt thự vườn 3 tầng có đặc điểm chung là không gian thường khá rộng lớn và đồ sộ nhưng hoàn toàn không quá kén phong cách thiết kế như một số loại hình nhà khác.

Hệ thống trụ cột của mẫu biệt thự 3 tầng được bố trí hợp lý, đều đặn khắp tứ phía ngôi nhà, với kiểu dang cột vuông vắn, khỏe khoắn không những làm tăng được tính thẩm mỹ, tạo được độ chắc chắn mà chúng còn giúp che chở, nâng đỡ hệ mái Nhật cũng như việc kết nối các dầm nhà cùng nhau để khiến cho không gian thẩm mỹ bên ngoài trở nên tinh tế và đẹp mắt hơn.

Xung quanh công trình, Maxhome đã thiết kế nhiều bồn hoa mang đến không gian sống lung linh, nhiều sắc màu, có tác dụng trong việc giải tỏa căng thẳng.

Phía sau và bên hông của công trình, tất cả diện tường được sơn phủ màu trắng, tạo hình có sự tương đồng với các mặt còn lại, đơn giản nhưng rất chỉn chu.

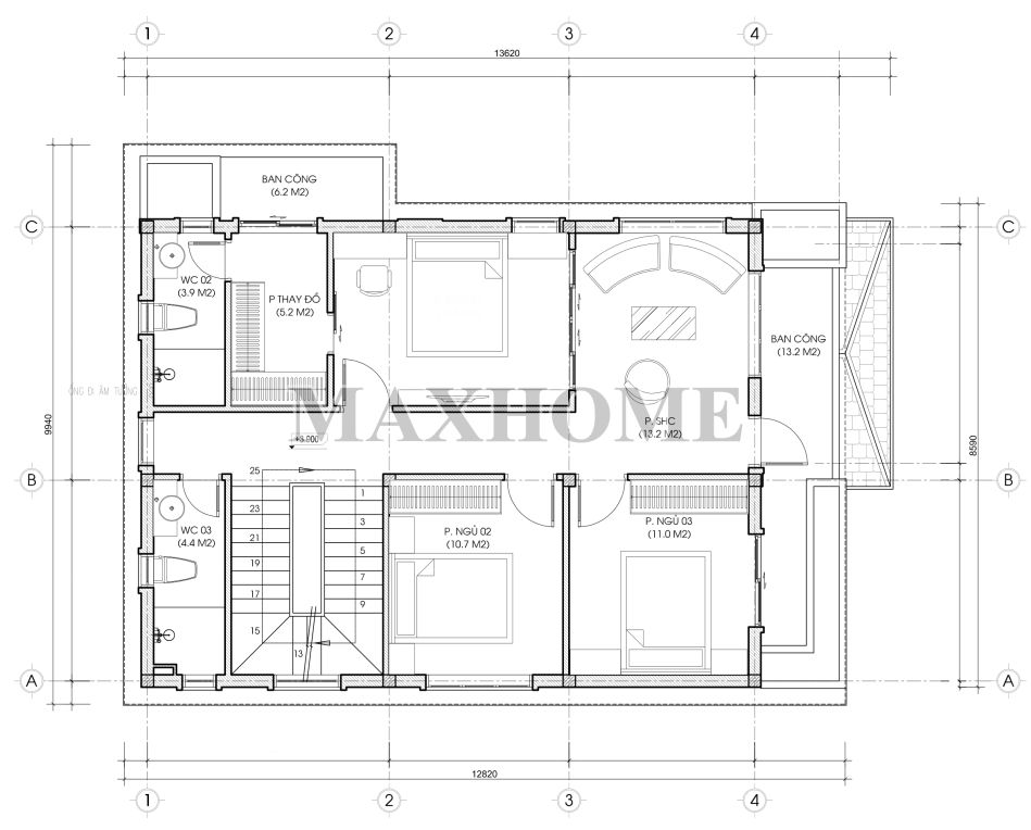
Ngôi nhà có kích thước chiều ngang là 13m, chiều sâu là 9,7m. Diện tích sử dụng của công trình khoảng 276m2. Căn nhà có bố trí mặt bằng công năng như sau.

Tầng 1 chủ yếu là không gian sinh hoạt chung, phòng khách có diện tích 26,7m2. Và không gian phòng bếp có diện tích rộng rãi là 18m2. Tầng 1 còn có 1 gara ô tô chiếm diện tích là 22,1m2

Di chuyển lên tầng 2 của ngôi nhà. Đầu tiên là không gian phòng sinh hoạt chung có diện tích là 13,2m2 và 3 phòng ngủ với diện tích lần lượt là 14m2, 10,7m2, 11m2. Ban công cũng có diện tích 13,2m2 rất rộng rãi.

Di chuyển lên tầng 3, khu vực đầu tiên là phòng thờ với diện tích 9,8m2. Tầng này có 1 phòng ngủ với diện tích 14m2, phòng kho với diện tích là 5,2m2. Đặc biệt là khu vực sân phơi với diện tích khá rộng rãi là 20,2m2.











